ホーム
HOME
物件紹介依頼
REQUEST
物件購入相談
CONSULTATION
会社情報
ABOUT
物件情報
ホーム
物件情報
東京都大田区京浜島 倉庫・工場 | エバクラコ(EBA KURAKO)
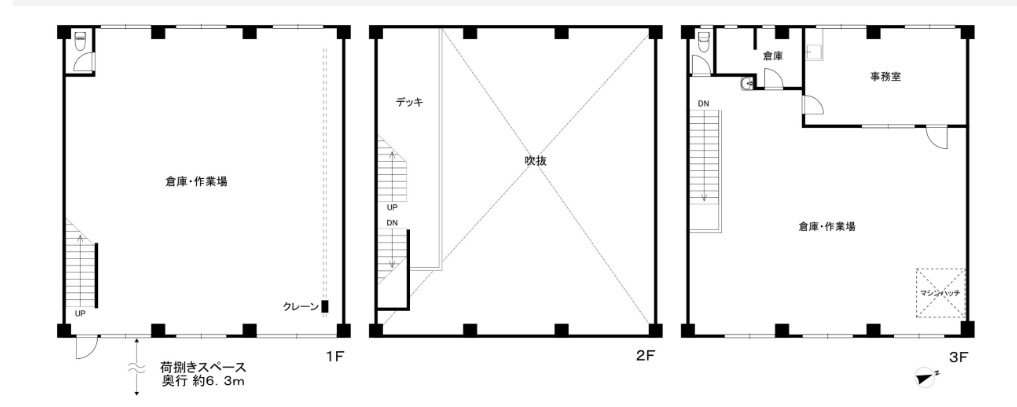
物件No.2286:東京都大田区京浜島 倉庫・工場
工場
物件所在地
東京都大田区京浜島2丁目
土地面積
198.01㎡
価格
13,800万円
建物面積
259.23㎡
交通
建物構造
現況
空室
建物階数
詳細内容
希少な工業専用地域の倉庫工場です。
お問い合わせはこちら
トップページに戻る